← Back
Container Pod Hotel
Work created and designed in AutoCAD and Photoshop
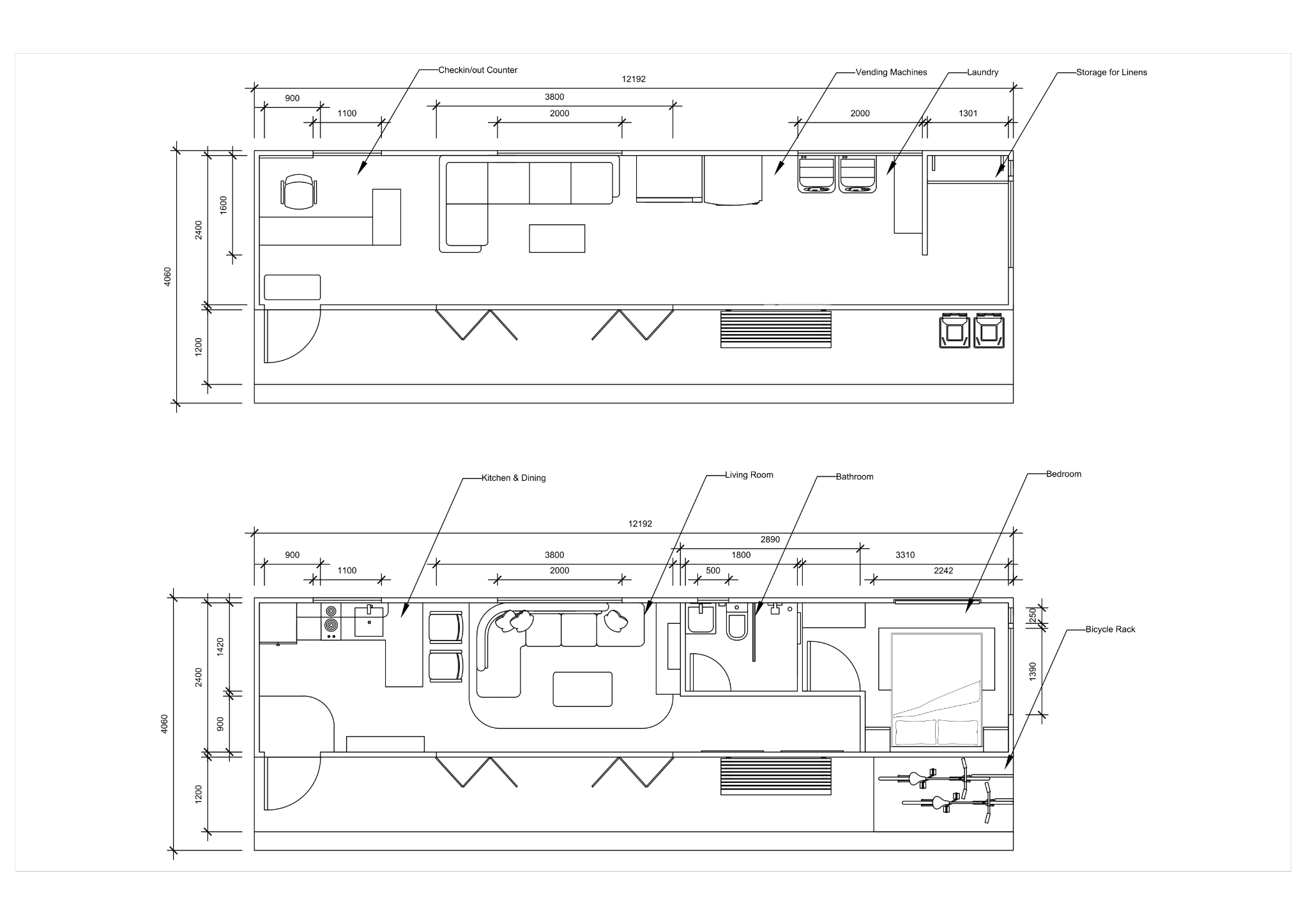
Starting with the floorplan and interior furnishings of a accommodation and service pod, this project sees the creation and transformation of shipping containers into a holiday retreat living space, and a general reception and other allocated amenities.
The interior furnishing and side elevations of the accommodation pods were rendered.
Each pod houses a kitchen, living room, bathroom and bedroom. There is adequate space for bike storage outside pods, big windows and doors allow light to freely filter through the space.
Each pod houses a kitchen, living room, bathroom and bedroom. There is adequate space for bike storage outside pods, big windows and doors allow light to freely filter through the space.
The interior furnishing of the service pod were rendered.
Included were features such as a receptionist desk, vending machines, and a laundry space.
The overall plot of land was rendered and had the pods spaced out within it.
This project covered features of AutoCAD and Photoshop, as well as spatial planning and design.
Post a comment